2022年02月11日

コロナ対策用 店舗デザイン(飲食店)

コロナウイルスはまだまだ落ち着きそうにありませんが、コロナ対策用 店舗デザイン(飲食店)のカウンターを考えてみました。界壁を収納可能なカウンターのデザインです。

■収納可能な界壁
korona03.jpg

■カウンターのスケッチ
korona04.jpg

 このコロナ禍の中で色々な意味で話題を呼んでいる店舗が大手焼肉チェーンが運営している<焼肉ライク>ではないでしょうか。カウンターで一人
焼肉でき、お客様が一人で、すべてが完結できるように店づくりから店の運営まで徹底的に研究されている。
先日、ラーメン店の計画を依頼され、この焼肉店を参考にしてプランニングしてみました。カウンターの下には箸やおしぼりが収納された引き出しがあり、
また席が一席づつ分離できるパーテションが回転可動できるように考えました。
posted by kajagogo at 17:13| Comment(0) | 情報

2021年03月26日

コロナ対策としての店舗レイアウト

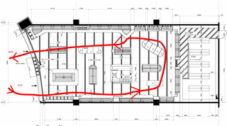
コロナ対策としての店舗レイアウトを考えてみました。三つの密を避けるということは@換気の悪い密閉空間A多くの人が集まる密集場所B間近で会話や発声する密接場面を作らないということです。まず物販店舗でできることを整理します。@の換気ですが、通勤電車でしているように入口を開け奥の窓を開けて空気の通り道を作ることです。お店の中に空気の流れ道を作ることです。Aの密集ですが、入口と出口を分けて一方通行でなるべく蜜を作らないように入店人数をコントロールする。ワイウエイコントロールが有効と考えています。そしてBの密接ですが、これはマスク対応での接客、レジブースでのアクリパネルによる隔離で対応します。
ワンウェイコントロールとは下図のようなイメージです。coronalayout.jpg
posted by kajagogo at 22:42| Comment(0) | 情報

2017年01月28日

ニトリモール枚方に行きました

ニトリモール枚方に行ってきました。ただの箱のような建物だとばかりおもっていましたが、シンプルな大屋根が素敵ないいデザインをしていました。内部はどこにでも入っているテナントでした。私のお世話しているお店が今回、入店することになり、お客様の動きをチェックしに行きました。
FullSizeRender (6).jpg
大屋根がいいです

FullSizeRender (7).jpg
大屋根の下

FullSizeRender (8).jpg
内部
posted by kajagogo at 23:56| Comment(6) | 情報